Home
Im Zentrum von Kematen am Innbach, am Gelände der ehemaligen Fleischerei „Muckenhuber“ entsteht ein Wohlfühlprojekt.
Die ansprechende Architektur, die barrierefreie Ausführung von der Tiefgarage zu allen Wohnungen und die kurzen Wege im Ort runden dieses Bauwerk perfekt ab.
Mitten im Zentrum gelegen, sind alle Anliegen des täglichen Bedarfs leicht erreichbar und auf ein Auto kann in den meisten Fällen verzichtet werden.
In nur 15 Minuten ist man mit dem Auto auch in den beiden Städten Grieskirchen und Wels und somit auch perfekt und staufrei zu namhaften und großen Arbeitgebern angebunden. Auch mit dem ÖPNV ist Wels im Stundentakt bequem zu erreichen.





















Kematen am Innbach
Kematen am Innbach ist eine idyllische Gemeinde im Bezirk Grieskirchen in Oberösterreich, die sich durch ihre malerische Lage und ländliche Atmosphäre auszeichnet.
Die Gemeinde liegt eingebettet zwischen sanften Hügeln und fruchtbaren Feldern, was sie zu einem perfekten Ort für Naturfreunde und Erholungssuchende macht. Der Innbach, der sich durch das Gebiet schlängelt, bietet zahlreiche Möglichkeiten für Spaziergänge und Radfahrten entlang seiner Ufer.
Kematen hat eine reiche Geschichte, die bis ins Mittelalter zurückreicht. Historische Gebäude und traditionelle Bauernhöfe prägen das Ortsbild und zeugen von der kulturellen Vergangenheit der Region.
Die Einwohner sind stolz auf ihr Brauchtum und organisieren regelmäßig Feste und Veranstaltungen, die das Gemeinschaftsgefühl stärken. Besonders im Sommer finden zahlreiche Feste statt, bei denen die Bewohner zusammenkommen, um zu feiern und lokale Spezialitäten zu genießen.
Die Gemeinde bietet eine gute Infrastruktur mit Schulen, Einkaufsmöglichkeiten und Freizeitangeboten, die das Leben dort angenehm machen. Zudem ist Kematen am Innbach verkehrstechnisch günstig gelegen, wodurch Städte wie Wels und Linz schnell erreichbar sind.
Insgesamt ist Kematen am Innbach ein Ort, der Tradition und Moderne harmonisch vereint. Die Kombination aus natürlicher Schönheit, einer lebendigen Gemeinschaft und einer hohen Lebensqualität macht Kematen zu einem attraktiven Wohnort für Familien und Einzelpersonen, die das Landleben schätzen.
E-Mobilität mit
CAR SHARING
E-Car Sharing ist eine zukunftsweisende Form des Car Sharings, die elektrische Fahrzeuge nutzt, um umweltfreundliche Mobilität zu fördern. Dieses Konzept gewinnt zunehmend an Bedeutung, da es sowohl ökologische als auch ökonomische Vorteile bietet.
Durch den Einsatz von Elektroautos trägt E-Car Sharing zur Reduzierung von CO2-Emissionen und Luftverschmutzung bei. Elektrofahrzeuge erzeugen während der Fahrt keine Abgase, was besonders in städtischen Gebieten von Vorteil ist, wo die Luftqualität häufig leidet. Zudem sind viele Anbieter mittlerweile auf erneuerbare Energien umgestiegen, um ihre Fahrzeuge aufzuladen, was den ökologischen Fußabdruck weiter minimiert.
Ein weiterer Vorteil ist die Kostenersparnis. Nutzer zahlen nur für die Zeit, in der sie das Fahrzeug tatsächlich nutzen, wodurch sie die hohen Kosten für den Besitz eines eigenen Autos umgehen. E-Car Sharing ermöglicht zudem eine flexible Nutzung: Von kurzen Fahrten in der Stadt bis hin zu längeren Ausflügen – die Wahl des Fahrzeugs passt sich dem individuellen Bedarf an.
Zusätzlich fördert E-Car Sharing ein neues Bewusstsein für nachhaltige Mobilität. Nutzer sind eher geneigt, über ihren Verkehrsbedarf nachzudenken und alternative Transportmöglichkeiten in Betracht zu ziehen. Insgesamt stellt E-Car Sharing einen wichtigen Schritt in Richtung einer umweltbewussteren und effizienteren Verkehrsinfrastruktur dar.
Im Rahmen des Bauvorhabens wird seitens des Bauträgers die Infrastruktur für ein solches Konzept geschaffen und ein Vertrag mit einem Anbieter von E-Mobilität ausverhandelt. Der optionale Vertrag läuft dann über die Eigentümergemeinschaft. Die Abrechnung erfolgt nutzungsbasiert mit dem jeweiligen Nutzer
Hauseigene Photovoltaik-Anlage
Photovoltaik ist eine Technologie zur Umwandlung von Sonnenlicht in elektrische Energie.
Die Nutzung von Photovoltaik hat in den letzten Jahren stark zugenommen, da sie eine umweltfreundliche Alternative zu fossilen Brennstoffen darstellt.
Durch die Erzeugung von sauberer Energie können CO2-Emissionen erheblich reduziert werden, was zur Bekämpfung des Klimawandels beiträgt. Photovoltaikanlagen sind vielseitig einsetzbar: Sie können sowohl auf Dächern von Wohngebäuden als auch in großen Solarparks installiert werden.
Ein weiterer Vorteil der Photovoltaik ist die Dezentralisierung der Energieproduktion. Haushalte können ihren eigenen Strom erzeugen und dadurch ihre Energiekosten senken. Überschüssige Energie kann in das öffentliche Netz eingespeist werden, was zusätzliche Einnahmen generiert.
Die technologische Entwicklung hat auch die Effizienz und Kosteneffektivität von Photovoltaikanlagen verbessert, wodurch sie für immer mehr Menschen und Unternehmen attraktiv werden. Insgesamt stellt Photovoltaik eine Schlüsseltechnologie für die zukünftige Energieversorgung dar und trägt zu einer nachhaltigen Entwicklung bei.
Die hauseigene PV Anlage mit einer Leistung von ca. 38 KWpeak wird vorrangig für die Wärmepumpen und den allgemeinen Strom wie zum Beispiel Aufzug, E-Car Sharing oder TG Beleuchtung genutzt.
Alles in allem ist die Mikrolage vom Innbachhof sehr attraktiv für Menschen, die ein zentrales Wohnen mit direkter Anbindung an die Natur schätzen

Raumhöhe ca. 275 cm

Fußbodenheizung mit Wärmepumpe

Holzböden und großformtiges Feinsteinzeug

PV Anlage auf dem Hausdach

Feinsteinzeug 60 x 60 cm

Zentrumslage in Kematen am Innbach - alles für den täglichen Bedarf fußläufig erreichbar

Perfekte Infrastruktur, Nahversorgung und Anbindung an den Strassenverkehr

Barrierefrei von der Tiefgarage in jedes Stockwerk

Sanitärausstattung von LAUFEN

Fiber To the Home - schnelles, stabiles und zukunftssicheres Internet

Großzügige Terrassen / Balkone und Eigengärten und attraktive allgemeine Freiflächen

Hauseigene Tiefgarage - 1 Stellplatz in der TG und ein Stellplatz Außen pro Wohnung fix reserviert

Elektroinstallation von Busch & Jäger - Vorbereitung für E-Ladestationen in der TG

Schlüsselfertige Ausführung zum garantierten Fixpreis

Raffstores mit Elektroantrieb in allen Wohn- und Schlafräumen
Team
Ing. Erik Schnellinger - Holger Reinmann - Ing. Rainer Raab - Dieter Reinthaller (v.l.n.r)
Haus A
| Top | Kaufpreis "schlüsselfertig" ohne Stellplatz | Wohnfläche | Terrasse / Balkon | Garten | Zimmer | Lage im Gebäude | |
|---|---|---|---|---|---|---|---|
| 1 | € 246.400 | Haus A, Top 1
Bei jeder Wohnung sind laut Bebauungsplan der Gemeinde Kematen am Innbach je 2 Stellplätze (einer in der Tiefgarage und ein Außenstellplatz) verpflichtend zu erwerben. Für Endkunden beträgt der Preis für den Stellplatz in der Tiefgarage 19.000 Euro und für den Außenstellplatz 8.000 Euro. Die oben angeführten Preise sind ohne die Kosten für die Stellplätze.
| 52,62 m² | 27,75 m² | 48 m² | 2 | EG |
| 2 | € 238.830 | Haus A, Top 2
Bei jeder Wohnung sind laut Bebauungsplan der Gemeinde Kematen am Innbach je 2 Stellplätze (einer in der Tiefgarage und ein Außenstellplatz) verpflichtend zu erwerben. Für Endkunden beträgt der Preis für den Stellplatz in der Tiefgarage 19.000 Euro und für den Außenstellplatz 8.000 Euro. Die oben angeführten Preise sind ohne die Kosten für die Stellplätze.
| 50,25 m² | 25,60 m² | 32 m² | 2 | EG |
| 3 | € 463.480 | Haus A, Top 3
Bei jeder Wohnung sind laut Bebauungsplan der Gemeinde Kematen am Innbach je 2 Stellplätze (einer in der Tiefgarage und ein Außenstellplatz) verpflichtend zu erwerben. Für Endkunden beträgt der Preis für den Stellplatz in der Tiefgarage 19.000 Euro und für den Außenstellplatz 8.000 Euro. Die oben angeführten Preise sind ohne die Kosten für die Stellplätze.
| 91,25 m² | 35,84 m² | 149 m² | 3 | EG |
| 4 | € 414.410 | Haus A, Top 4
Bei jeder Wohnung sind laut Bebauungsplan der Gemeinde Kematen am Innbach je 2 Stellplätze (einer in der Tiefgarage und ein Außenstellplatz) verpflichtend zu erwerben. Für Endkunden beträgt der Preis für den Stellplatz in der Tiefgarage 19.000 Euro und für den Außenstellplatz 8.000 Euro. Die oben angeführten Preise sind ohne die Kosten für die Stellplätze.
| 85,14 m² | 41,34 m² | 112 m² | 3 | EG |
| 5 | € 333.730 | Haus A, Top 5
Bei jeder Wohnung sind laut Bebauungsplan der Gemeinde Kematen am Innbach je 2 Stellplätze (einer in der Tiefgarage und ein Außenstellplatz) verpflichtend zu erwerben. Für Endkunden beträgt der Preis für den Stellplatz in der Tiefgarage 19.000 Euro und für den Außenstellplatz 8.000 Euro. Die oben angeführten Preise sind ohne die Kosten für die Stellplätze.
| 68,45 m² | 33,19 m² | 93 m² | 2 | EG |
| 6 | € 290.060 | Haus A, Top 6
Bei jeder Wohnung sind laut Bebauungsplan der Gemeinde Kematen am Innbach je 2 Stellplätze (einer in der Tiefgarage und ein Außenstellplatz) verpflichtend zu erwerben. Für Endkunden beträgt der Preis für den Stellplatz in der Tiefgarage 19.000 Euro und für den Außenstellplatz 8.000 Euro. Die oben angeführten Preise sind ohne die Kosten für die Stellplätze.
| 61,20 m² | 28,14 m² | 94 m² | 2 | EG |
| 7 | € 237.200 | Haus A, Top 7
Bei jeder Wohnung sind laut Bebauungsplan der Gemeinde Kematen am Innbach je 2 Stellplätze (einer in der Tiefgarage und ein Außenstellplatz) verpflichtend zu erwerben. Für Endkunden beträgt der Preis für den Stellplatz in der Tiefgarage 19.000 Euro und für den Außenstellplatz 8.000 Euro. Die oben angeführten Preise sind ohne die Kosten für die Stellplätze.
| 52,62 m² | 17,00 m² | - | 2 | 1 OG |
| 8 | € 219.000 | Haus A, Top 8
Bei jeder Wohnung sind laut Bebauungsplan der Gemeinde Kematen am Innbach je 2 Stellplätze (einer in der Tiefgarage und ein Außenstellplatz) verpflichtend zu erwerben. Für Endkunden beträgt der Preis für den Stellplatz in der Tiefgarage 19.000 Euro und für den Außenstellplatz 8.000 Euro. Die oben angeführten Preise sind ohne die Kosten für die Stellplätze.
| 50,25 m² | 15,68 m² | - | 2 | 1 OG |
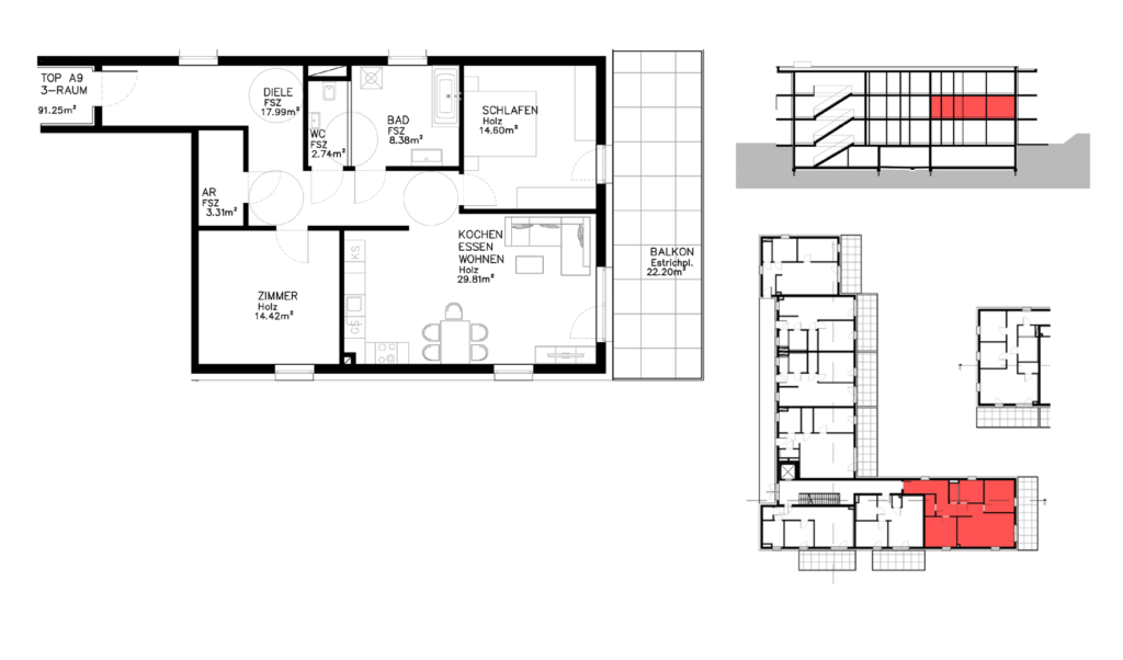
| 9 | € 437.050 | Haus A, Top 9
Bei jeder Wohnung sind laut Bebauungsplan der Gemeinde Kematen am Innbach je 2 Stellplätze (einer in der Tiefgarage und ein Außenstellplatz) verpflichtend zu erwerben. Für Endkunden beträgt der Preis für den Stellplatz in der Tiefgarage 19.000 Euro und für den Außenstellplatz 8.000 Euro. Die oben angeführten Preise sind ohne die Kosten für die Stellplätze.
| 91,25 m² | 22,20 m² | - | 3 | 1 OG |
| 10 | € 326.230 | Haus A, Top 10
Bei jeder Wohnung sind laut Bebauungsplan der Gemeinde Kematen am Innbach je 2 Stellplätze (einer in der Tiefgarage und ein Außenstellplatz) verpflichtend zu erwerben. Für Endkunden beträgt der Preis für den Stellplatz in der Tiefgarage 19.000 Euro und für den Außenstellplatz 8.000 Euro. Die oben angeführten Preise sind ohne die Kosten für die Stellplätze.
| 70,64 m² | 20,91 m² | - | 2 | 1 OG |
| 11 | € 267.010 | Haus A, Top 11
Bei jeder Wohnung sind laut Bebauungsplan der Gemeinde Kematen am Innbach je 2 Stellplätze (einer in der Tiefgarage und ein Außenstellplatz) verpflichtend zu erwerben. Für Endkunden beträgt der Preis für den Stellplatz in der Tiefgarage 19.000 Euro und für den Außenstellplatz 8.000 Euro. Die oben angeführten Preise sind ohne die Kosten für die Stellplätze.
| 58,01 m² | 16,34 m² | - | 2 | 1 OG |
| 12 | € 268.000 | Haus A, Top 12
Bei jeder Wohnung sind laut Bebauungsplan der Gemeinde Kematen am Innbach je 2 Stellplätze (einer in der Tiefgarage und ein Außenstellplatz) verpflichtend zu erwerben. Für Endkunden beträgt der Preis für den Stellplatz in der Tiefgarage 19.000 Euro und für den Außenstellplatz 8.000 Euro. Die oben angeführten Preise sind ohne die Kosten für die Stellplätze.
| 58,08 m² | 16,98 m² | - | 2 | 1 OG |
| 13 | € 274.200 | Haus A, Top 13
Bei jeder Wohnung sind laut Bebauungsplan der Gemeinde Kematen am Innbach je 2 Stellplätze (einer in der Tiefgarage und ein Außenstellplatz) verpflichtend zu erwerben. Für Endkunden beträgt der Preis für den Stellplatz in der Tiefgarage 19.000 Euro und für den Außenstellplatz 8.000 Euro. Die oben angeführten Preise sind ohne die Kosten für die Stellplätze.
| 61,34 m² | 17,60 m² | - | 2 | 1 OG |
| 14 | € 248.240 | Haus A, Top 14
Bei jeder Wohnung sind laut Bebauungsplan der Gemeinde Kematen am Innbach je 2 Stellplätze (einer in der Tiefgarage und ein Außenstellplatz) verpflichtend zu erwerben. Für Endkunden beträgt der Preis für den Stellplatz in der Tiefgarage 19.000 Euro und für den Außenstellplatz 8.000 Euro. Die oben angeführten Preise sind ohne die Kosten für die Stellplätze.
| 52,62 m² | 17,00 m² | - | 2 | 2 OG |
| 15 | € 243.770 | Haus A, Top 15
Bei jeder Wohnung sind laut Bebauungsplan der Gemeinde Kematen am Innbach je 2 Stellplätze (einer in der Tiefgarage und ein Außenstellplatz) verpflichtend zu erwerben. Für Endkunden beträgt der Preis für den Stellplatz in der Tiefgarage 19.000 Euro und für den Außenstellplatz 8.000 Euro. Die oben angeführten Preise sind ohne die Kosten für die Stellplätze.
| 50,25 m² | 15,68 m² | - | 2 | 2 OG |
| 16 | € 457.380 | Haus A, Top 16
Bei jeder Wohnung sind laut Bebauungsplan der Gemeinde Kematen am Innbach je 2 Stellplätze (einer in der Tiefgarage und ein Außenstellplatz) verpflichtend zu erwerben. Für Endkunden beträgt der Preis für den Stellplatz in der Tiefgarage 19.000 Euro und für den Außenstellplatz 8.000 Euro. Die oben angeführten Preise sind ohne die Kosten für die Stellplätze.
| 91,25 m² | 22,20 m² | - | 3 | 2 OG |
| 17 | € 341.400 | Haus A, Top 17
Bei jeder Wohnung sind laut Bebauungsplan der Gemeinde Kematen am Innbach je 2 Stellplätze (einer in der Tiefgarage und ein Außenstellplatz) verpflichtend zu erwerben. Für Endkunden beträgt der Preis für den Stellplatz in der Tiefgarage 19.000 Euro und für den Außenstellplatz 8.000 Euro. Die oben angeführten Preise sind ohne die Kosten für die Stellplätze.
| 70,64 m² | 20,91 m² | - | 2 | 2 OG |
| 18 | € 279.430 | Haus A, Top 18
Bei jeder Wohnung sind laut Bebauungsplan der Gemeinde Kematen am Innbach je 2 Stellplätze (einer in der Tiefgarage und ein Außenstellplatz) verpflichtend zu erwerben. Für Endkunden beträgt der Preis für den Stellplatz in der Tiefgarage 19.000 Euro und für den Außenstellplatz 8.000 Euro. Die oben angeführten Preise sind ohne die Kosten für die Stellplätze.
| 58,01 m² | 16,34 m² | - | 2 | 2 OG |
| 19 | € 280.460 | Haus A, Top 19
Bei jeder Wohnung sind laut Bebauungsplan der Gemeinde Kematen am Innbach je 2 Stellplätze (einer in der Tiefgarage und ein Außenstellplatz) verpflichtend zu erwerben. Für Endkunden beträgt der Preis für den Stellplatz in der Tiefgarage 19.000 Euro und für den Außenstellplatz 8.000 Euro. Die oben angeführten Preise sind ohne die Kosten für die Stellplätze.
| 58,08 m² | 16,98 m² | - | 2 | 2 OG |
| 20 | € 286.960 | Haus A, Top 20
Bei jeder Wohnung sind laut Bebauungsplan der Gemeinde Kematen am Innbach je 2 Stellplätze (einer in der Tiefgarage und ein Außenstellplatz) verpflichtend zu erwerben. Für Endkunden beträgt der Preis für den Stellplatz in der Tiefgarage 19.000 Euro und für den Außenstellplatz 8.000 Euro. Die oben angeführten Preise sind ohne die Kosten für die Stellplätze.
| 61,34 m² | 17,60 m² | - | 2 | 2 OG |
Haus B
| Top | Kaufpreis "schlüsselfertig" ohne Stellplatz | Wohnfläche | Terrasse / Balkon | Garten | Zimmer | Lage im Gebäude | |
|---|---|---|---|---|---|---|---|
| 1 | € 358.950 | Haus B, Top 1
Bei jeder Wohnung sind laut Bebauungsplan der Gemeinde Kematen am Innbach je 2 Stellplätze (einer in der Tiefgarage und ein Außenstellplatz) verpflichtend zu erwerben. Für Endkunden beträgt der Preis für den Stellplatz in der Tiefgarage 19.000 Euro und für den Außenstellplatz 8.000 Euro. Die oben angeführten Preise sind ohne die Kosten für die Stellplätze.
| 82,01 m² | 29,79 m² | 16 m² | 3 | EG |
| 2 | € 337.480 | Haus B, Top 2
Bei jeder Wohnung sind laut Bebauungsplan der Gemeinde Kematen am Innbach je 2 Stellplätze (einer in der Tiefgarage und ein Außenstellplatz) verpflichtend zu erwerben. Für Endkunden beträgt der Preis für den Stellplatz in der Tiefgarage 19.000 Euro und für den Außenstellplatz 8.000 Euro. Die oben angeführten Preise sind ohne die Kosten für die Stellplätze.
| 73,37 m² | 32,37 m² | 17 m² | 2 | EG |
| 3 | € 303.410 | Haus B, Top 3
Bei jeder Wohnung sind laut Bebauungsplan der Gemeinde Kematen am Innbach je 2 Stellplätze (einer in der Tiefgarage und ein Außenstellplatz) verpflichtend zu erwerben. Für Endkunden beträgt der Preis für den Stellplatz in der Tiefgarage 19.000 Euro und für den Außenstellplatz 8.000 Euro. Die oben angeführten Preise sind ohne die Kosten für die Stellplätze.
| 65,38 m² | 31,09 m² | 17 m² | 2 | EG |
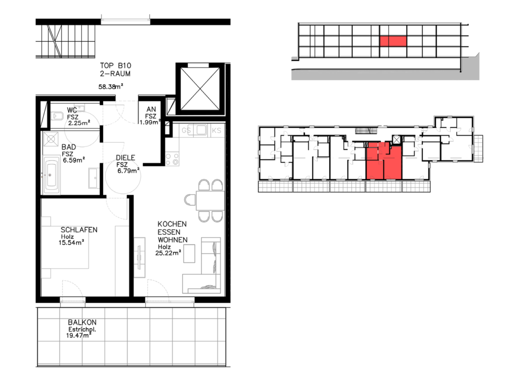
| 4 | € 275.940 | Haus B, Top 4
Bei jeder Wohnung sind laut Bebauungsplan der Gemeinde Kematen am Innbach je 2 Stellplätze (einer in der Tiefgarage und ein Außenstellplatz) verpflichtend zu erwerben. Für Endkunden beträgt der Preis für den Stellplatz in der Tiefgarage 19.000 Euro und für den Außenstellplatz 8.000 Euro. Die oben angeführten Preise sind ohne die Kosten für die Stellplätze.
| 58,41 m² | 31,97 m² | 18 m² | 2 | EG |
| 5 | € 324.220 | Haus B, Top 5
Bei jeder Wohnung sind laut Bebauungsplan der Gemeinde Kematen am Innbach je 2 Stellplätze (einer in der Tiefgarage und ein Außenstellplatz) verpflichtend zu erwerben. Für Endkunden beträgt der Preis für den Stellplatz in der Tiefgarage 19.000 Euro und für den Außenstellplatz 8.000 Euro. Die oben angeführten Preise sind ohne die Kosten für die Stellplätze.
| 65,95 m² | 25,05 m² | 62 m² | 2 | EG |
| 6 | € 355.130 | Haus B, Top 6
Bei jeder Wohnung sind laut Bebauungsplan der Gemeinde Kematen am Innbach je 2 Stellplätze (einer in der Tiefgarage und ein Außenstellplatz) verpflichtend zu erwerben. Für Endkunden beträgt der Preis für den Stellplatz in der Tiefgarage 19.000 Euro und für den Außenstellplatz 8.000 Euro. Die oben angeführten Preise sind ohne die Kosten für die Stellplätze.
| 71,87 m² | 23,49 m² | 95 m² | 2 | EG |
| 7 | € 361.480 | Haus B, Top 7
Bei jeder Wohnung sind laut Bebauungsplan der Gemeinde Kematen am Innbach je 2 Stellplätze (einer in der Tiefgarage und ein Außenstellplatz) verpflichtend zu erwerben. Für Endkunden beträgt der Preis für den Stellplatz in der Tiefgarage 19.000 Euro und für den Außenstellplatz 8.000 Euro. Die oben angeführten Preise sind ohne die Kosten für die Stellplätze.
| 82,01 m² | 18,62 m² | - | 3 | 1 OG |
| 8 | € 336.800 | Haus B, Top 8
Bei jeder Wohnung sind laut Bebauungsplan der Gemeinde Kematen am Innbach je 2 Stellplätze (einer in der Tiefgarage und ein Außenstellplatz) verpflichtend zu erwerben. Für Endkunden beträgt der Preis für den Stellplatz in der Tiefgarage 19.000 Euro und für den Außenstellplatz 8.000 Euro. Die oben angeführten Preise sind ohne die Kosten für die Stellplätze.
| 73,37 m² | 19,82 m² | - | 2 | 1 OG |
| 9 | € 301.600 | Haus B, Top 9
Bei jeder Wohnung sind laut Bebauungsplan der Gemeinde Kematen am Innbach je 2 Stellplätze (einer in der Tiefgarage und ein Außenstellplatz) verpflichtend zu erwerben. Für Endkunden beträgt der Preis für den Stellplatz in der Tiefgarage 19.000 Euro und für den Außenstellplatz 8.000 Euro. Die oben angeführten Preise sind ohne die Kosten für die Stellplätze.
| 65,38 m² | 19,04 m² | - | 2 | 1 OG |
| 10 | € 272.090 | Haus B, Top 10
Bei jeder Wohnung sind laut Bebauungsplan der Gemeinde Kematen am Innbach je 2 Stellplätze (einer in der Tiefgarage und ein Außenstellplatz) verpflichtend zu erwerben. Für Endkunden beträgt der Preis für den Stellplatz in der Tiefgarage 19.000 Euro und für den Außenstellplatz 8.000 Euro. Die oben angeführten Preise sind ohne die Kosten für die Stellplätze.
| 58,41 m² | 19,47 m² | - | 2 | 1 OG |
| 11 | € 314.940 | Haus B, Top 11
Bei jeder Wohnung sind laut Bebauungsplan der Gemeinde Kematen am Innbach je 2 Stellplätze (einer in der Tiefgarage und ein Außenstellplatz) verpflichtend zu erwerben. Für Endkunden beträgt der Preis für den Stellplatz in der Tiefgarage 19.000 Euro und für den Außenstellplatz 8.000 Euro. Die oben angeführten Preise sind ohne die Kosten für die Stellplätze.
| 65,95 m² | 15,22 m² | - | 2 | 1 OG |
| 12 | € 337.630 | Haus B, Top 12
Bei jeder Wohnung sind laut Bebauungsplan der Gemeinde Kematen am Innbach je 2 Stellplätze (einer in der Tiefgarage und ein Außenstellplatz) verpflichtend zu erwerben. Für Endkunden beträgt der Preis für den Stellplatz in der Tiefgarage 19.000 Euro und für den Außenstellplatz 8.000 Euro. Die oben angeführten Preise sind ohne die Kosten für die Stellplätze.
| 71,87 m² | 11,64 m² | - | 2 | 1 OG |
| 13 | € 378.290 | Haus B, Top 13
Bei jeder Wohnung sind laut Bebauungsplan der Gemeinde Kematen am Innbach je 2 Stellplätze (einer in der Tiefgarage und ein Außenstellplatz) verpflichtend zu erwerben. Für Endkunden beträgt der Preis für den Stellplatz in der Tiefgarage 19.000 Euro und für den Außenstellplatz 8.000 Euro. Die oben angeführten Preise sind ohne die Kosten für die Stellplätze.
| 82,01 m² | 18,62 m² | - | 3 | 2 OG |
| 14 | € 352.460 | Haus B, Top 14
Bei jeder Wohnung sind laut Bebauungsplan der Gemeinde Kematen am Innbach je 2 Stellplätze (einer in der Tiefgarage und ein Außenstellplatz) verpflichtend zu erwerben. Für Endkunden beträgt der Preis für den Stellplatz in der Tiefgarage 19.000 Euro und für den Außenstellplatz 8.000 Euro. Die oben angeführten Preise sind ohne die Kosten für die Stellplätze.
| 73,37 m² | 19,82 m² | - | 2 | 2 OG |
| 15 | € 315.630 | Haus B, Top 15
Bei jeder Wohnung sind laut Bebauungsplan der Gemeinde Kematen am Innbach je 2 Stellplätze (einer in der Tiefgarage und ein Außenstellplatz) verpflichtend zu erwerben. Für Endkunden beträgt der Preis für den Stellplatz in der Tiefgarage 19.000 Euro und für den Außenstellplatz 8.000 Euro. Die oben angeführten Preise sind ohne die Kosten für die Stellplätze.
| 65,38 m² | 19,04 m² | - | 2 | 2 OG |
| 16 | € 284.750 | Haus B, Top 16
Bei jeder Wohnung sind laut Bebauungsplan der Gemeinde Kematen am Innbach je 2 Stellplätze (einer in der Tiefgarage und ein Außenstellplatz) verpflichtend zu erwerben. Für Endkunden beträgt der Preis für den Stellplatz in der Tiefgarage 19.000 Euro und für den Außenstellplatz 8.000 Euro. Die oben angeführten Preise sind ohne die Kosten für die Stellplätze.
| 58,41 m² | 19,47 m² | - | 2 | 2 OG |
| 17 | € 329.590 | Haus B, Top 17
Bei jeder Wohnung sind laut Bebauungsplan der Gemeinde Kematen am Innbach je 2 Stellplätze (einer in der Tiefgarage und ein Außenstellplatz) verpflichtend zu erwerben. Für Endkunden beträgt der Preis für den Stellplatz in der Tiefgarage 19.000 Euro und für den Außenstellplatz 8.000 Euro. Die oben angeführten Preise sind ohne die Kosten für die Stellplätze.
| 65,95 m² | 15,22 m² | - | 2 | 2 OG |
| 18 | € 353.340 | Haus B, Top 18
Bei jeder Wohnung sind laut Bebauungsplan der Gemeinde Kematen am Innbach je 2 Stellplätze (einer in der Tiefgarage und ein Außenstellplatz) verpflichtend zu erwerben. Für Endkunden beträgt der Preis für den Stellplatz in der Tiefgarage 19.000 Euro und für den Außenstellplatz 8.000 Euro. Die oben angeführten Preise sind ohne die Kosten für die Stellplätze.
| 71,87 m² | 11,64 m² | - | 2 | 2 OG |
Bei jeder Wohnung sind laut Bebauungsplan der Gemeinde Kematen am Innbach je 2 Stellplätze (einer in der Tiefgarage und ein Außenstellplatz) verpflichtend zu erwerben. Für Endkunden beträgt der Preis für den Stellplatz in der Tiefgarage 19.000 Euro und für den Außenstellplatz 8.000 Euro. Die oben angeführten Preise sind ohne die Kosten für die Stellplätze.
Setzen Sie den ersten Schritt in Richtung Ihres Eigenheims!
Vereinbaren Sie jetzt einen Termin für ein unverbindliches Erstgespräch. Wir freuen uns auf Sie!
Setzen Sie den ersten Schritt in Richtung Ihres Eigenheims!
Vereinbaren Sie jetzt einen Termin für ein unverbindliches Erstgespräch. Wir freuen uns auf Sie!
